Neubau von 2 Doppelhäusern
Goethestraße 40-46,
08107 Kirchberg

Was erwartet Sie?

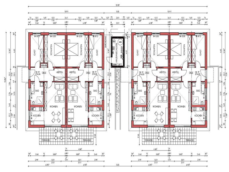
Auf einer Gesamtgrundstücksfläche von ca. 1583 m² entstehen zwei Doppelhäuser mit insgesamt 4 barrierefreien Eigentumswohnungen. Die Grundstücke werden entsprechend geteilt und haben eine Größe von ca. 335 m² bis ca. 496 m².
Zu jeder Wohneinheit gehört ein PKW-Stellplatz. Die Sonnenterrasse sowie ein Privatgarten bieten Platz für individuelle Gestaltung und laden zum Verweilen ein.
Die Häuser werden massiv gebaut und sind nicht unterkellert. Lagermöglichkeiten bieten allerdings ein innenliegender Abstellraum sowie ein kleiner Dachboden (Kaltdach).
Über einen separaten Hausanschlussraum, welcher sich zwischen den beiden Häusern befindet, werden die Wohnungen zentral versorgt.
Die Wohnung wird schlüsselfertig an Sie übergeben, sodass Sie sofort einziehen können.
Der Einzug ist ab Januar 2018 möglich.

Details zur Wohnung

  • 86,04 m² Wohnfläche
  • 3 Zimmer
  • heller Eingangsbereich mit Garderobennische
  • großzügiger Wohn-/Essbereich mit Zugang zur Terrasse
  • professioneller Sonnenschutz an den Terrassenfenstern
  • Bad mit Wanne,
  • barrierefreier Dusche und Handtuchheizkörper
  • gleichmäßige und angenehme Wärme durch Fußbodenheizung
  • pflegeleichtes Linoleum in Echtholzoptik und Fliesen sorgen für moderne Optik und Gemütlichkeit
  • eine Vliestapete mit weißem Anstrich, bietet die Möglichkeit für individuelle Farbgestaltung

Ansprechpartner:
Wohnungsbaugenossenschaft
Zwickau-Land e.G.
Albert-Schweitzer-Ring 33a
08112 Wilkau-Haßlau
0375-69218-0
info@wbgz.com

Frau Franz
0375-69218-24
Franz@wbgz.com

Besuchen Sie uns im Web:
www.wbgz.com